ЖК Абрикосово (17)

ЖК Абрикосово (17)

от 111 356₽ м²

24 этажа
30-87 м²
IV кв. 2023
До центра: 30 минут транспортом
Получить планировки и цены
Работаем напрямую с юрлицом застройщика без комиссий и переплат!

Квартиры в наличии и актульные цены в ЖК Абрикосово

В новостройках Краснодара продается более 35 000 квартир, подберите квартиру своей мечты.
Записаться на экскурсию

Проект «Абрикосово» – 4 корпуса высотой 25 этажей.

Декоративные вставные элементы на окнах выделяют каждый дом согласно фруктовому названию в оттенках яблока, груши, вишни или черешни.

В каждом доме предусмотрены места для хранения колясок. 

На первых этажах комплекса расположены коммерческие помещения.

Во дворе спроектированы 2 спортивно-оздоровительных комплекса, тренажерный комплекс, детские площадки, зона барбекю и уютные беседки.

В районе ЖК «Абрикосово» есть школы, детские сады, магазины и торговые комплексы, поликлиники и краевая больница, спортивные комплексы и стадион.

  • Застройщик: ГК «Точно»
  • Тип дома: кирпично-монолитный
  • Фасад: облицовочный кирпич
  • Отделка: подчистовая
  • Паркинг: подземный паркинг, отдельный многоуровневый паркинг
  • Оплата: 100% оплата, рассрочка, ипотека, военная ипотека
  • Договор: ДДУ, Цессии ДДУ

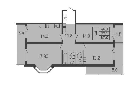
Планировки жилого комплекса

Инфраструктура района

Подобрать по параметрам

В новостройках продается более 35 000 квартир, подберите квартиру своей мечты.

Количество комнат:

Получить подборку